Venta Chalets en Mar del Tuyú, Venta en Pozo, Calle 54 nº 630, La Costa.
- U$D 24.000
Venta Chalets en Mar del Tuyú, Venta en Pozo, Calle 54 nº 630, La Costa.
- U$D 24.000
Resumen
Prop. ID: 50053
- Chalets, Departamento, Venta en Pozo
- 2
- 1
- 40
- 50053
Descripción
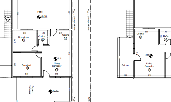
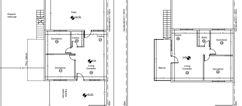
¡Inverti hoy en tu hogar!. Te presentamos un proyecto de seis unidades funcionales desarrolladas en un mismo lote. Este complejo contempla chalets ubicados al frente y en el sector medio, y departamentos emplazados en el fondo, todas las unidades cuentan con 3 ambientes, y espacio vehicular. Ofrecen amplia financiación.
- a 400m de la Av.58 ( Via de acceso a la localidad)
- a 600m del mar
- A 400 m de la zona comercial
Valores y Disponibles:
ENTREGA CONTRAFRENTE Y MEDIO EN 8 MESES
ENTREGA FONDO ENERO 2027
FINANCIACIÓN
- Unidad funcional contrafrente(uf 2): USD 26.000.-
- Unidades funcionales medio (uf 3 y uf 4): USD 25.000.-
- Unidades funcionales fondo (uf 5 y uf 6): USD 24.000-
Ambientes y comodidades:
Chalets:
- Cocina-comedor integrada
- Dormitorio Principal
- Segundo Dormitorio
- Baño completo
- Patio con parrilla
- Espacio vehicular
Departamentos:
- Cocina-comedor integrada
- Dormitorio Principal (Balcón solo en la unidad de planta alta)
- Segundo Dormitorio
- Baño completo
- Patio con parrilla
- Espacio vehicular
Equipamiento:
- Mesada con mueble
- Termotanque Eléctrico
- Bomba Centrifuga
Servicios:
- Conexión a red de cloacas
- Paso de red de gas natural
- Gas envasado
Condiciones de Venta:
- Gastos de escrituración a cargo del comprador
- Honorarios Inmobiliarios 4%
Video
Detalles
Actualizado en marzo 1, 2026 a 4:34 pm-
Prop. ID 50053
-
Precio U$D 24.000
-
Tamaño en m² 40 m²
-
Sup. Total 55 m²
-
Habitaciones 2
-
Ambientes 3
-
Baño 1
-
Garage 1
-
Garage en m² 15
-
Año 2026
-
Inmueble Chalets, Departamento, Venta en Pozo
-
Operación Venta
Detalles adicionales
-
ORIENTACION NORTE
Ubicación
Ver en Google Maps-
Ubicación: Calle 54 nº 630, Mar del Tuyú, La Costa.
-
Ciudad: Mar del Tuyu
-
Provincia/País: Buenos Aires
-
Código Postal: 7108
-
País: Argentina


















