Venta Departamentos En Las Toninas A Estrenar, Calle 11 nro 1158, La Costa

  • U$D 35.000

Resumen

Prop. ID: 20001
  • Departamento
  • Inmueble
  • 2
  • Habitaciones
  • 1
  • Baño
  • 57,6 m²
  • Tamaño de área
  • 20001
  • Prop. ID

Descripción

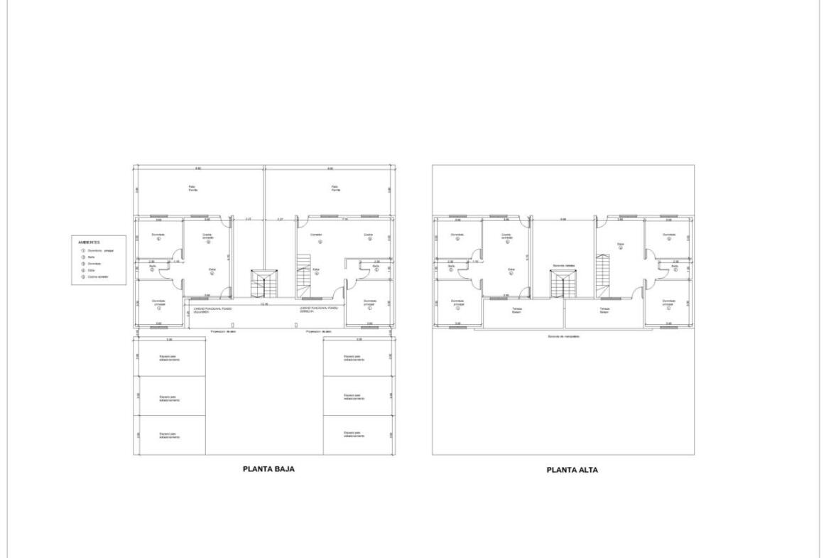
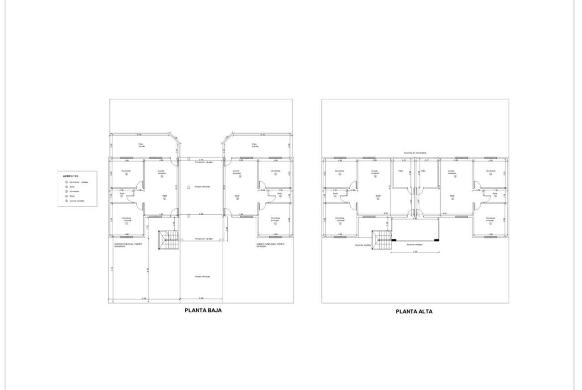
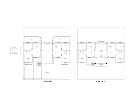
En esta oportunidad, te mostramos estos hermosos departamentos en construccion. Unidades disponibles al frente y fondo del complejo. Departamentos en planta baja y alta de 3 ambientes distribuidos en cocina-comedor, dos dormitorios, baño completo, amplio patio (3,85 x 9,78) y espacio vehicular. 

Ubicadas  a 60om del Mar y del centro de la localidad. Además, cuenta ambientes luminosos gracias a su orientación oeste.

  • A 600 m del Mar.
  • A 600 m del centro
  • A 50 m de av. 26 -ingreso a la localidad desde Ruta Provincial nro. 11

ACEPTA VEHICULO EN PARTE DE PAGO

ENTREGA INMEDIATA

UNIDADES DISPONIBLES Y VALORES:

  • Depto Fondo PB Izquierda, USD RESEVADO.
  • Depto Fondo PA Izquierda, USD 35.000.-

 

  • Depto Frente PA Derecha, USD 38.000.-
  • Depto Frente PA Izquierda, USD 38.000.-

Ambientes y comodidades:

Planta Baja:

  • Cocina – Comedor
  • Dormitorio Principal (3.60 x 3.50)
  • Segundo Dormitorio (3.60 x 3.50)
  • Baño completo
  • Amplio Patio (3,85 x 9,78)
  • Espacio vehicular

Equipamiento:

  • Mesada con mueble
  • Bomba centrifuga
  • Termotanque

Servicios:

  • Gas Envasado
  • Conexión a Red de Cloacas

Condiciones de Venta:

  • Gastos de escrituración a cargo del comprador
  • Honorarios inmobiliarios 4%

Esperamos tu consulta!

Video

Detalles

Actualizado en abril 25, 2026 a 7:25 pm
  • Prop. ID 20001
  • Precio U$D 35.000
  • Tamaño en m² 57,6 m²
  • Habitaciones 2
  • Ambientes 3
  • Baño 1
  • Garage 1
  • Garage en m² 15
  • Año 2022
  • Inmueble Departamento
  • Operación Venta

Detalles adicionales

  • RED DE CLOACAS SI
  • PASO DE RED DE GAS SI
  • ORIENTACON OESTE
  • Ubicación: Calle 11 1158, Las Toninas, Partido de La Costa, Buenos Aires, Argentina
  • Ciudad: Las Toninas
  • Provincia/País: Buenos Aires
  • Código Postal: 7106
  • País: Argentina

Organizar una Visita

Tu información

Organizar una Visita

Tipo de Visita

Comparar listados

Comparar
Matrícula • T° III F° 773 N° 1429
Av. 79 N° 713, Mar del Tuyú.
¿Necesitas ayuda?