Venta Dúplex en Mar del Tuyu, A Estrenar, Calle 6 Nº 8154, La Costa
- U$D 45.000
Venta Dúplex en Mar del Tuyu, A Estrenar, Calle 6 Nº 8154, La Costa
- U$D 45.000
Resumen
- Dúplex/Tríplex
- 2
- 2
- 60 mt2 m²
- 80140
Descripción
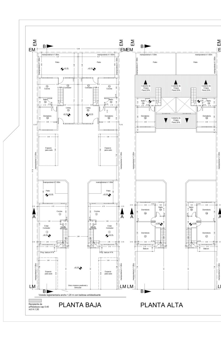
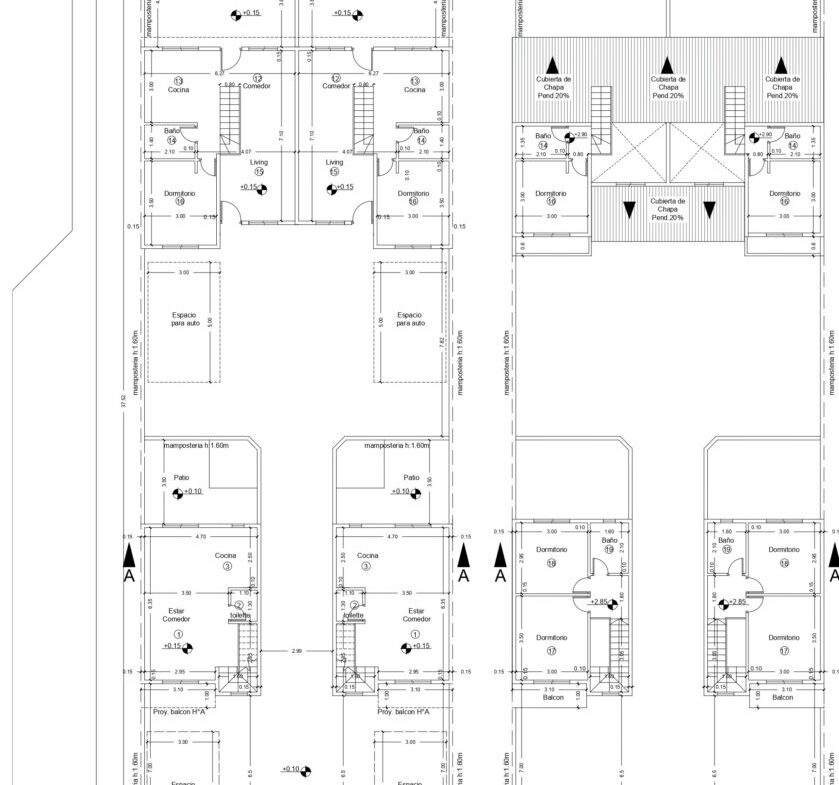
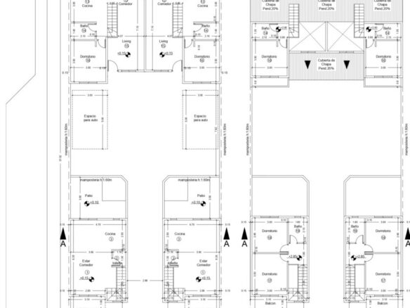
En esta oportunidad te mostramos este complejo con una excelente ubicación, en zona de amplias playas y a solo 6 cuadras del mar. Son 4 unidades, 2 dúplex al frente y 2 duplex al fondo.
Dúplex al frente de 3 ambientes, distribuidos en planta baja, con cocina-comedor integrada, toilette, patio con pileta de lavar y parrilla. En planta alta se encuentran dormitorio principal con balcón, segundo dormitorio y baño completo.
Dúplex al fondo de 5 ambientes, distribuidos en planta baja, con cocina, living-comedor integrado, dormitorio, baño completo y patio con pileta de lavar y parrilla. En planta alta cuenta con domirtorio principal con balcón, dormitorio secundario y baño completo.
Todas las unidades cuentan con espacio vehicular.
- A 200 mts de Av. 79 (vía de acceso a la localidad desde ruta provincial 11)
- 600 m del Mar
- Orientación: Oeste.
Entrega Inmediata
Valores:
- Unidad Frente Izquierda USD 45.000
- Unidad Frente Derechaa USD 45.000
Ambientes y comodidades Frente:
PLANTA BAJA
- Cocina-comedor
- Toilette
- Escalera de hormigón
- Patio con parrilla y pileta lavadero.
- Espacio Vehicular
PLANTA ALTA
- Dormitorio principal con balcón
- Segundo dormitorio
- Baño completo
Equipamiento:
- Mesada con mueble
- Bomba centrifuga
- Termotanque
Servicios:
- Red de cloacas
- Gas envasado
Condiciones de Venta:
- Gastos de escrituración a cargo del comprador
- Honorarios inmobiliarios 4%
En María Alvarez Inmobiliaria esperamos tu consulta!
Video
Detalles
Actualizado en marzo 8, 2026 a 6:13 pm-
Prop. ID 80140
-
Precio U$D 45.000
-
Tamaño en m² 60 mt2 m²
-
Sup. Total 102,50 mt2 m²
-
Habitaciones 2
-
Ambientes 3
-
Baños 2
-
Garage 1
-
Garage en m² 15
-
Año 2025
-
Inmueble Dúplex/Tríplex
-
Operación Venta
Detalles adicionales
-
DISTANCIA AL MAR 600 m
-
ORIENTACION OESTE
-
SUP. CUBIERTA / SUP. TOTAL FRENTE 63mts/ 102,50mt2
-
SUP. CUBIERTA / SUP. TOTAL FONDO 60mt2/ 95mts2
Ubicación
Ver en Google Maps-
Ubicación: Calle 6 nº 8154, Mar del Tuyú, Partido de La Costa, Buenos Aires, Argentina
-
Ciudad: Mar del Tuyu
-
Provincia/País: Buenos Aires
-
Código Postal: 7108
-
País: Argentina

















