Venta Dúplex En Mar Del Tuyu, A Estrenar, Calle 89 nro 187 , La Costa
- U$D 55.000
Venta Dúplex En Mar Del Tuyu, A Estrenar, Calle 89 nro 187 , La Costa
- U$D 55.000
Resumen
- Dúplex/Tríplex
- 3
- 2
- 80004
Descripción
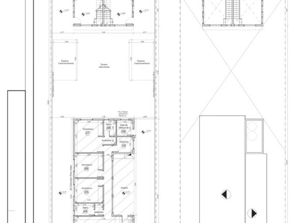
En esta oportunidad te mostramos estos amplios Dúplex a estrenar de 4 ambientes, ideales para vivienda permanente. Los cuales están distribuidos en dos plantas, en planta baja cuenta con cocina comedor integrado, dormitorio principal , segundo dormitorio, baño , patio con parrilla y pileta de lavadero, espacio vehicular al frente de la unidad , mientras que en planta alta cuenta posee un entrepiso de hormigón ideal para usarse como 3er dormitorio con salida al balcon terraza y un baño completo. Contactanos para visitarlos!
Entrega inmediata
Excelentes detalles de terminación
- 100 m de calle 2 ( zona comercial)
- 200 m del mar, zona de extensas playas
- 500 m de AV. 94 ( Via de acceso a la localidad desde Ruta Provincial 11)
-Video tour debajo de la descripción-
Ambientes y comodidades:
Planta baja
- Amplia Cocina-comedor integrada
- Dormitorio principal
- Segundo dormitorio
- Baño
- Solida escalera de Hormigón Armado
- Patio con parrilla tipo fogón y pileta de lavadero
- Espacio vehicular amplio frente a la unidad funcional
Planta Alta
- Dormitorio tipo entrepiso de hormigon con salida al balcon terraza
- Baño Completo
Equipamiento y detalles de terminación:
- Carpinterias con premarcos y contramarcos instalados- Linea Modena, Aluar
- Planos de gas aprobados
- Instalaciones en termofusion
- Mesada
- Bomba centrifuga
- Termotanque
- Rejas en ventanas
Servicios:
- Conexión a Red de cloacas
- Gas Envasado
- Conexión para lavarropas
Condiciones de Venta:
- Gastos de escrituración a cargo del comprador
- honorarios inmobiliarios 4%
En María Alvarez Inmobiliaria esperamos tu consulta!
Video
Detalles
Actualizado en enero 16, 2026 a 5:17 pm-
Prop. ID 80004
-
Precio U$D 55.000
-
Habitaciones 3
-
Ambientes 4
-
Baños 2
-
Garage 1
-
Año 2022
-
Inmueble Dúplex/Tríplex
-
Operación Venta
Detalles adicionales
-
ESPACIO VEHICULAR SI
-
PLANO DE GAS APROBADO SI
-
PASO RED CLOACAL SI
-
PASO RED DE GAS SI
-
ORIENTACIÓN SUR
Ubicación
Ver en Google Maps-
Ubicación: Calle 89 187, Mar del Tuyú, Partido de La Costa, Buenos Aires, 7108, Argentina
-
Ciudad: Mar del Tuyu
-
Provincia/País: Buenos Aires
-
Código Postal: 7108
-
País: Argentina



























