Venta Duplex en Mar del Tuyu, Venta En Pozo, Calle 8 Nº 7750, La Costa
- U$D 38.000
Venta Duplex en Mar del Tuyu, Venta En Pozo, Calle 8 Nº 7750, La Costa
- U$D 38.000
Resumen
- Dúplex/Tríplex, Venta en Pozo
- 2
- 1
- 60 m²
- 70074
Descripción
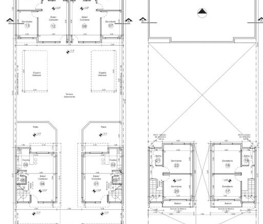
En esta oportunidad te mostramos este complejo en construcción, con una excelente ubicación, con 3 unidades disponibles en venta en pozo, al frente se encuentran emplazados dos dúplex y al fondo dos chalets, todas las unidades de 3 ambientes que cuentan con amplio patio trasero con parrilla y gran espacio vehicular al frente de la propiedad.
Los ambientes en las unidades del frente se encuentran distribuidos en Living – Comedor integrado, cocina y toilette en Planta Baja y accediendo por escalera al primer piso se encuentran el dormitorio principal con balcón al frente y el dormitorio secundario, en la misma planta un baño completo. El espacio vehicular al frente de la unidad y patio con parrilla y pileta de lavadero en el contra frente de la unidad.
- 100 M DE Av. 79 (via de ingreso y egreso a la localidad desde Ruta 11)
- 800 m del Mar
- Orientación: Oeste
DISPONIBLE:
DUPLEX FRENTE DERECHA USD 38.000 (Entrega en 8 meses)
DUPLEX FRENTE IZQUIERDA (RESERVADO)
>>El complejo cuenta con dos Chalets al fondo <<
CHALET FONDO DERECHA – USD 34.000 (Entrega inmediata)
Ambientes y comodidades DUPLEX
Planta Baja
- Cocina – comedor integrado
- Toilette
- Amplio Patio Semicubierto con parrilla con tiraje y pileta lavadero
- Espacio Vehicular
Planta Alta
- Dormitorio principal con balcón
- Segundo dormitorio
- Baño Completo
Equipamiento de las unidades
- Mesada con mueble
- Bomba centrifuga
- Termotanque
Servicios
- Gas envasado
Condiciones de Venta:
- Gastos de escrituración a cargo del comprador
- Honorarios inmobiliarios 4%
En María Álvarez Inmobiliaria esperamos tu consulta!
Detalles
Actualizado en diciembre 27, 2025 a 6:41 pm-
Prop. ID 70074
-
Precio U$D 38.000
-
Tamaño en m² 60 m²
-
Sup. Total 110 m²
-
Habitaciones 2
-
Ambientes 3
-
Baño 1
-
Garage 1
-
Garage en m² 32
-
Año 2025
-
Inmueble Dúplex/Tríplex, Venta en Pozo
-
Operación Venta
Detalles adicionales
-
DISTANCIA AL MAR 800 m
-
ORIENTACION OESTE
Ubicación
Ver en Google Maps-
Ubicación: Calle8 7750, Mar del Tuyú, Partido de La Costa, Buenos Aires, Argentina
-
Ciudad: Mar del Tuyu
-
Provincia/País: Buenos Aires
-
Código Postal: 7108
-
País: Argentina






















